网站首页
功能介绍
联系我们
加入我们
保存到桌面
登录
|
注册
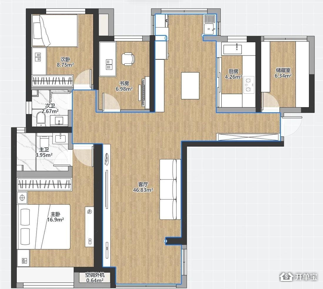
急!急!急! 宝龙国际西区 看房随时,房东直卖
物业类型:
住宅
区县:
钟楼 - 青枫公园
楼盘:
宝龙国际花园(西区)
房型:
3室2厅
楼层:
30/32楼
方向:
南北
面积:
123平方米
售价:
118万元
装修程度:
简单装修
联系人:
赵*
电话:
查看联系人
描述:
核心卖点
宝龙国际花园西区,一见钟情的公寓,123.20平方,3室2厅1卫,南北通透,采光很不错!23层楼高,视野开阔,风景如画。简单装修,拎包入住,生活便捷。电梯直达,出行无忧。不满五年,不 。
正南朝向,采光很不错,前有后阳台,景观视野超赞。电梯直达,拎包入住,空气清新,地势高,环境优美,绿树环绕,宽敞明亮。产权清晰,满五无贷款,水电暖天然气齐全,生活设施一应俱全。小区住户稳定,停车费低,交通便利,生活设施齐全,入住率高。卖房原因?小换大!价格优惠。
图片: